top of page
Polyfunkce v Mukařově

Polyfunkce v Mukařově

studie 2022, realizace -

Ing. arch. Karel Sýkora, Ing. Karel Fousek

Polyfunkce v Mukařově
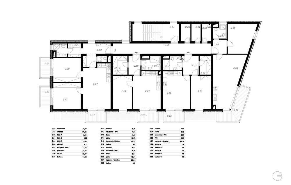
Polyfunkce v Mukařově půdorys
Polyfunkce v Mukařově půdorys
Polyfunkce v Mukařově půdorys
Polyfunkce v Mukařově
Polyfunkce v Mukařově
Polyfunkce v Mukařově
Polyfunkce v Mukařově
Polyfunkce v Mukařově
Polyfunkce v Mukařově
Polyfunkce v Mukařově

projekční práce, realizace staveb, inženýrská činnost

+420 608 246 141

Komenského 527, Kostelec nad Černými lesy, 281 63

© 2024 by KFJ s.r.o. Copyright KFJ. All rights reserved

bottom of page